2 кімнатна квартира з ремонтом, вулиця Чупринки, місто Львів
ID:16719
- Кількість спалень:1
- Ремонт:євроремонт
- Кількість санвузлів:1
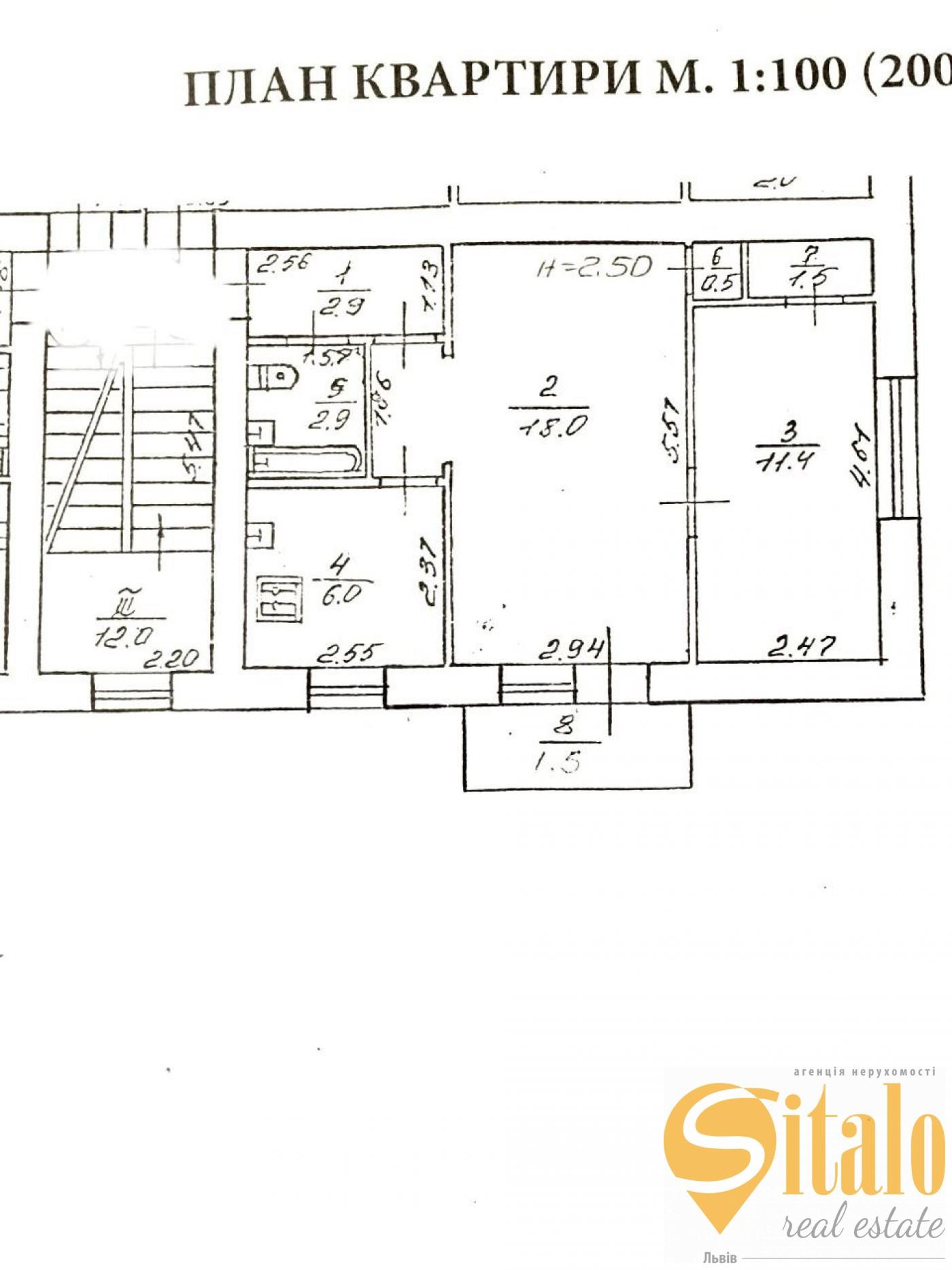
Продаж квартир Перемиська 9, 1 кімната, площа (46/12/24)
Контактна інформація
2 кімнатна квартира, розташована на 3 поверсі 5 поверхової цегляної будівлі по вулиці Перемиська (бічна Чупринки). Будівля - спецпроєкт, грубі стіни, чистий під'їзд, навколо сад.
Загальна площа квартири 46 м²,
Житлова 13.4 м²,
Площа кухні-студії 24 м².
У квартирі зроблено євроремонт з переплануванням. Зал поєднали з кухнею і отримали простору кухню-студію, збільшено санвузол. Уся електрика і сантехніка замінені. Вікна металопластикові, двері броньовані. Індивідуальне опалення, підігрів підлоги, засклений відремонтований балкон..
Це той рідкісний випадок, коли локація набагато дорожча за самі стіни: поруч зупинки громадського транспорту, дитяча та доросла поліклініки, лікарні, університети, Ботанічний сад Національного лісотехнічного університету, спортивно-розважальний центр LEOLAND для всієї родини, відпочинковий комплекс "Медик" з відкритим басейном, ТЦ, школи, дитячі садочки, парк "Піскові озера".
Код об'єкта 16719
Загальна площа квартири 46 м²,
Житлова 13.4 м²,
Площа кухні-студії 24 м².
У квартирі зроблено євроремонт з переплануванням. Зал поєднали з кухнею і отримали простору кухню-студію, збільшено санвузол. Уся електрика і сантехніка замінені. Вікна металопластикові, двері броньовані. Індивідуальне опалення, підігрів підлоги, засклений відремонтований балкон..
Це той рідкісний випадок, коли локація набагато дорожча за самі стіни: поруч зупинки громадського транспорту, дитяча та доросла поліклініки, лікарні, університети, Ботанічний сад Національного лісотехнічного університету, спортивно-розважальний центр LEOLAND для всієї родини, відпочинковий комплекс "Медик" з відкритим басейном, ТЦ, школи, дитячі садочки, парк "Піскові озера".
Код об'єкта 16719