Будинок у Києві для великої родини, закритий кооператив!Без%

Адреса Центральна
Кількість кімнат 7 кімнат Площа 400/300/50 Площа ділянки 10

ID:16395

ХАРАКТЕРИСТИКА ОБ'ЄКТА
  • Тип будинку:Будинок
  • Ексклюзив:Так
  • Кількість спалень:3
  • Ремонт:під чистову
  • Кількість санвузлів:4

Продаж будинків Центральна , 7 кімнат, площа (400/300/50)

Контактна інформація

Антон Машенцев
ОПИС

Просторий сімейний будинок біля Києва – 250 м² комфорту та функціональності

Пропонується будинок загальною площею 250 м², який поєднує надійність будівництва та продумане планування для комфортного проживання родини.

Будівництво та матеріали

  • Перший поверх – газоблок 400 мм, теплий і енергоефективний.
  • Другий поверх – зведений із повнотілого брусу, що забезпечує екологічність та затишок.

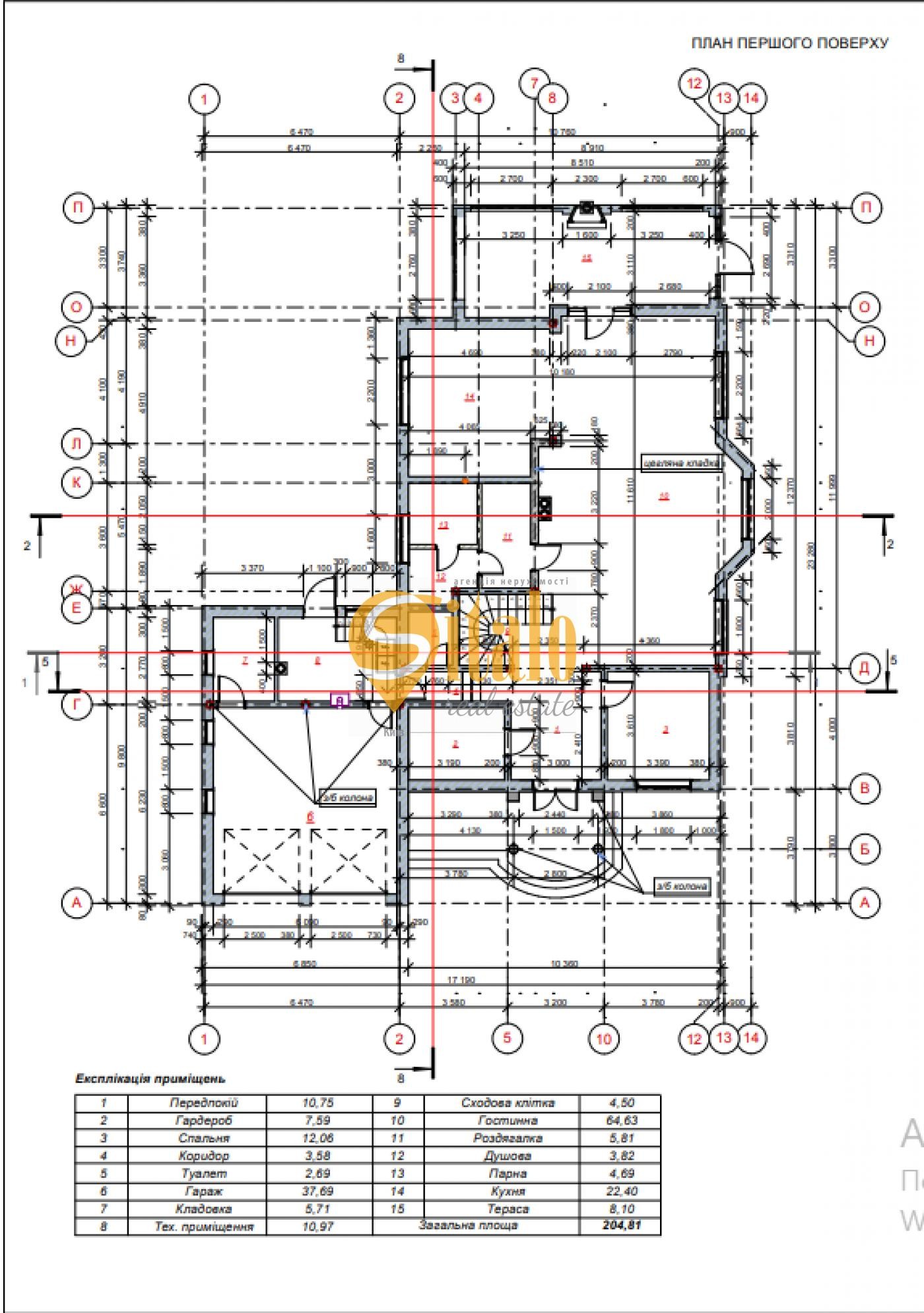
Планування

Перший поверх:

  • гараж на два автомобілі;
  • котельня;
  • окремий вхід у кімнату для персоналу (з можливістю облаштувати кабінет або гостьову);
  • простора вхідна група;
  • гостьова кімната;
  • санвузол;
  • сауна;
  • кухня-вітальня з виходом на засклену терасу.

Другий поверх:

  • санвузол;
  • дві спальні;
  • господарська спальня із власним санвузлом та гардеробною.

Технічний стан

Будинок під чистове оздоблення:

  • виконано розводку опалення;
  • зроблено стяжку підлоги;
  • розведено електрику по всьому будинку;
  • стіни підготовлені гіпсовою штукатуркою.

Комунікації

  • електрика — 10 кВт;
  • свердловина;
  • септик;
  • газ проходить по вулиці.

Локація

Зручне розташування:

  • до метро Славутич — 15 хвилин на авто;
  • поруч магазини, супермаркет “Фора”, ресторани, поштомати;
  • до Дніпра — 5 хвилин;
  • поруч зупинка громадського транспорту.

Додаткова інформація

  • Без комісії для покупця
  • Код об’єкта: 16395
ОБ'ЄКТ НА КАРТІ
ОТРИМАТИ КОНСУЛЬТАЦІЮ Відправити заявку