Продаж 1 -кімнатна кварира по вул. Роксолани, Львів
ID:16705
- Кількість спалень:1
- Ремонт:без оздоблювальних робіт
- Кількість санвузлів:1
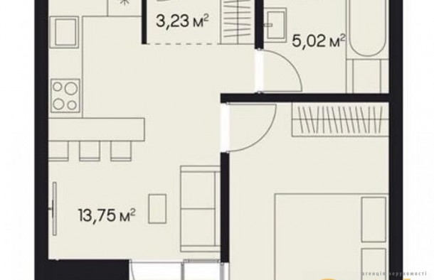
Продаж квартир Роксоляни 149, 1 кімната, площа (40/13/14)
Контактна інформація
Продається 1-кімнатна квартира у ЖК Continent Green по вул. Роксоляни, Львів.
Розташована на 2 поверсі із 10 поверхів.
Загальна площа: 40 м²
Житлова площа: 13 м²
Площа кухні: 14 м²
Квартира світла та простора з панорамними вікнами.
Опалення індивідуальне газове, двоконтурний котел. Встановлені батареї.
Стіни з цегли, мають чорнову цементно-піщану штукатурку, підлога - цементну стяжку.
Утеплення пінополістирол.
Висота стелі 2.8 м
1 лоджія.
Довкола будинку розвинута інфраструктура.
Прибудинкова територія має ландшафтний дизайн.
Ведеться цілодобове відеоспостереження.
На території є дитячий і спорт майданчики підземний та гостьовий паркінги.
У пішому доступі від житлового комплексу CONTINENT GREEN усі основні інфраструктурні об'єкти: школи, дитячі садки, магазини, медичні та спортивні центри. До найближчого супермаркету «Близенько» — 3 хвилини пішки, а у радіусі 15 хвилин розташовані супермаркети «Рукавичка», «Сільпо» та «АТБ-Маркет», а також кілька невеликих продуктових магазинів, у тому числі кондитерський магазин «Вацак». Свіжі овочі та фрукти, товари місцевих фермерів та виробників на відстані 9 хвилин пішки від будинку завжди можна купити на Левандівському ринку, а за 10 хвилин на авто розташовані ринки «Південний» і «Привокзальний» та найближчий торговий центр «Скриня».
Переуступка.
Запланована здача 1 квартал 2026р.
Код об'єкту: 16705
Розташована на 2 поверсі із 10 поверхів.
Загальна площа: 40 м²
Житлова площа: 13 м²
Площа кухні: 14 м²
Квартира світла та простора з панорамними вікнами.
Опалення індивідуальне газове, двоконтурний котел. Встановлені батареї.
Стіни з цегли, мають чорнову цементно-піщану штукатурку, підлога - цементну стяжку.
Утеплення пінополістирол.
Висота стелі 2.8 м
1 лоджія.
Довкола будинку розвинута інфраструктура.
Прибудинкова територія має ландшафтний дизайн.
Ведеться цілодобове відеоспостереження.
На території є дитячий і спорт майданчики підземний та гостьовий паркінги.
У пішому доступі від житлового комплексу CONTINENT GREEN усі основні інфраструктурні об'єкти: школи, дитячі садки, магазини, медичні та спортивні центри. До найближчого супермаркету «Близенько» — 3 хвилини пішки, а у радіусі 15 хвилин розташовані супермаркети «Рукавичка», «Сільпо» та «АТБ-Маркет», а також кілька невеликих продуктових магазинів, у тому числі кондитерський магазин «Вацак». Свіжі овочі та фрукти, товари місцевих фермерів та виробників на відстані 9 хвилин пішки від будинку завжди можна купити на Левандівському ринку, а за 10 хвилин на авто розташовані ринки «Південний» і «Привокзальний» та найближчий торговий центр «Скриня».
Переуступка.
Запланована здача 1 квартал 2026р.
Код об'єкту: 16705