Продаж / Будинок / 0 цикл / Винники
ID:15888
- Тип будинку:Котедж
- Ексклюзив:Ні
- Кількість спалень:3
- Ремонт:без ремонту
- Кількість санвузлів:2
Продаж будинків Керницького 5, 3 кімнати, площа (120/49/29)
Контактна інформація
Продаж сучасного котеджу у місті Винники по вулиці Керницького.
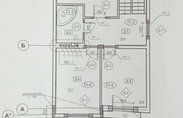
Загальна площа будинку 120 кв. м.
Будинок складається з двох поверхів.
На першому поверсі розміщується: тамбур, хол, простора кухня - вітальня, площа якої складає 29 кв.м та санвузол.
На другому поверсі розташовані три житлові кімнати, загальною площею 49 кв.м, коридор, санвузол та балкон.
Котедж збудовано з цегли. Перекриття між поверхами - моноліт, дах - металочерепиця.
Внутрішні стіни поштукатурені. на підлозі стяжка.
Якісні вікна та броньовані вхідні двері.
До будинку заведено всі комунікації: вода та каналізація - центральні, світло, газ.
Утеплений фасад та утеплений дах.
Територія огороджена та викладена бруківкою.
Також є вихід на задній двір з кухні - вітальні.
Котедж знаходиться в дуже гарній затишній локації неподалік від центру міста.
Код об'єкта: 15888
Загальна площа будинку 120 кв. м.
Будинок складається з двох поверхів.
На першому поверсі розміщується: тамбур, хол, простора кухня - вітальня, площа якої складає 29 кв.м та санвузол.
На другому поверсі розташовані три житлові кімнати, загальною площею 49 кв.м, коридор, санвузол та балкон.
Котедж збудовано з цегли. Перекриття між поверхами - моноліт, дах - металочерепиця.
Внутрішні стіни поштукатурені. на підлозі стяжка.
Якісні вікна та броньовані вхідні двері.
До будинку заведено всі комунікації: вода та каналізація - центральні, світло, газ.
Утеплений фасад та утеплений дах.
Територія огороджена та викладена бруківкою.
Також є вихід на задній двір з кухні - вітальні.
Котедж знаходиться в дуже гарній затишній локації неподалік від центру міста.
Код об'єкта: 15888